Oracle Property Group

Fraser Valley's #1 Real Estate Team*

*(Based on 2024 FVREB Team Stats for 10-19 Members)

1670 Pandora Street, Hastings, Vancouver East

1670 Pandora Street

Hastings, Vancouver East

$4,297,000

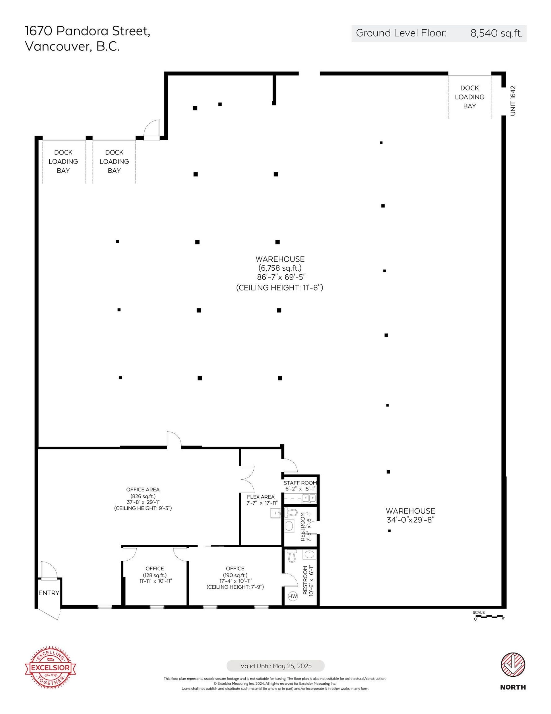
8,540 sqft | 10,890 sqft

Big discount below Jul 2024 BC Ppty Tax Assessed Value $5.645M. Starting price $80 per Buildable SQFT or $400 per SQFT of land. Existing old timer warehouse w/ 8,540 SF of leaseable area. Recently vacant w/ mkt rents of $20 per SF Net = 4% cap rate. Adjacent bldgs same owner 1642 & 1636 Pandora also on MLS, use 1642 Pandora together as side wall open pass thru w/ dbl fire rollup gate for addtl 8,221 SF space. Heavy Industrial redevelopment site, 2 blks North of E. Hastings at Commercial Dr., & 3 blks South of Port of Van. waterfront, in East Van. Site is 10,736 SQFT of land & 88 FT of frontage along Pandora St. First time to sales market in approx. 50 yrs. Present M2 zoning allows Floor Space Ratio to 5.0 times the site size (53,680 buildable SQFT) for allowed uses of manufacturing, wholesaling, transportation & storage. Site is directly across the 4 storey PS Public Storage (74K SF flr area) & directly behind the newer 7 storey SmartStop Storage (90K SF). 2021 Phases 1 & 2 Environmental Analysis done.
Listed by Amex Broadway West Realty.

Read More

Big discount below Jul 2024 BC Ppty Tax Assessed Value $5.645M. Starting price $80 per Buildable SQFT or $400 per SQFT of land. Existing old timer warehouse w/ 8,540 SF of leaseable area. Recently vacant w/ mkt rents of $20 per SF Net = 4% cap rate. Adjacent bldgs same owner 1642 & 1636 Pandora also on MLS, use 1642 Pandora together as side wall open pass thru w/ dbl fire rollup gate for addtl 8,221 SF space. Heavy Industrial redevelopment site, 2 blks North of E. Hastings at Commercial Dr., & 3 blks South of Port of Van. waterfront, in East Van. Site is 10,736 SQFT of land & 88 FT of frontage along Pandora St. First time to sales market in approx. 50 yrs. Present M2 zoning allows Floor Space Ratio to 5.0 times the site size (53,680 buildable SQFT) for allowed uses of manufacturing, wholesaling, transportation & storage. Site is directly across the 4 storey PS Public Storage (74K SF flr area) & directly behind the newer 7 storey SmartStop Storage (90K SF). 2021 Phases 1 & 2 Environmental Analysis done.

Listed by Amex Broadway West Realty.

Vancouver, Fraser Valley and Chilliwack MLS® Reciprocity Brought to you by your friendly REALTORS® through the MLS® System, courtesy of Oracle Property Group for your convenience.
Disclaimer: This representation is based in whole or in part on data generated by the Chilliwack & District Real Estate Board, Fraser Valley Real Estate Board or Real Estate Board of Greater Vancouver which assumes no responsibility for its accuracy.

Listing Details
  • MLS®: C8065897
  • Type: Industrial
  • Size: 8,540 sqft
  • Lot Size: 10,890 sqft
  • Zoning: M-2
  • Sub Type: Industrial
  • $/SQFT: $503.16
About Hastings, Vancouver East
Address on Google Mapsmap marker icon
Map View
Street View

Amenities nearby 1670 Pandora Street

Hastings, Vancouver East

Latitude: 49.2829899

Longitude: -123.0707621

V5L 1L6

Similar Listings


Contact us now to get started with your next move!