Oracle Property Group

Fraser Valley's #1 Real Estate Team*

*(Based on 2024 FVREB Team Stats for 10-19 Members)

1636 Pandora Street, Hastings, Vancouver East

1636 Pandora Street

Hastings, Vancouver East

$4,487,000

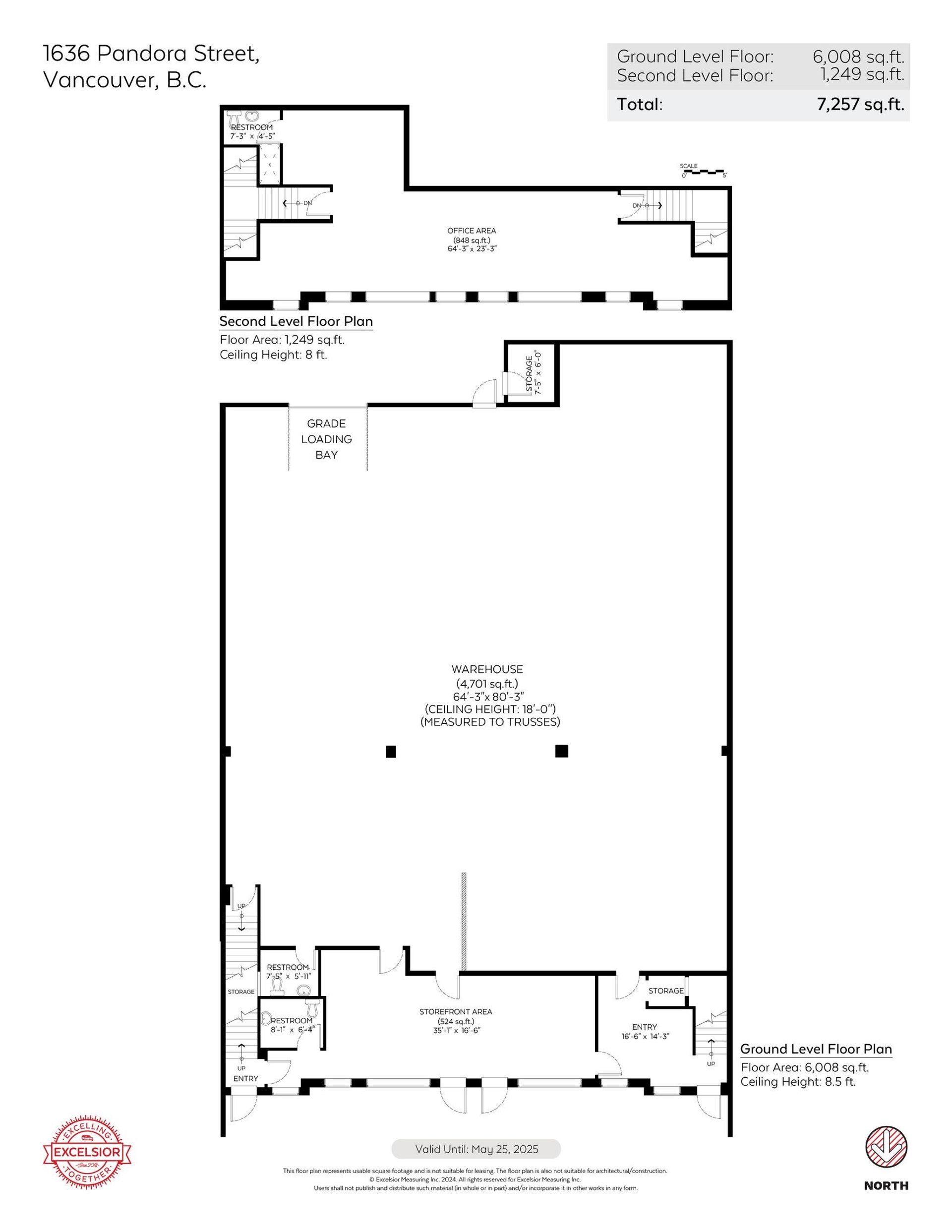
7,257 sqft | 7,841 sqft

Modern & recent $350k renovation incl. new: windows, paint & carpets. Warehouse completely pressure washed, floor grinded & re-leveled w/ fresh concrete. Then passed COV safety inspections & issued new occupancy cert. 18 ft. ceiling. 7,257 SF of leaseable area. Recently vacant w/ mkt rents of $24 per SF Net = 3.9% cap rate. Adjacent bldgs same owner 1642 & 1670 Pandora also on MLS. Heavy Industrial redevelopment site. Site is 8,052 SQFT of land & 66 FT of frontage along Pandora St. First time to sales market since built in 1991. Present M2 zoning allows Floor Space Ratio to 5.0 times the site size (40,260 buildable SQFT) for allowed uses of manufacturing, wholesaling, transportation & storage. Site is directly across the 4 storey PS Public Storage (74k SF floor area) & directly behind the newer 7 storey SmartStop Storage (90k SF). 2021 Phases 1 & 2 Environmental Analysis done. Jul 2024 BC Property Tax Assessment: Land $4.323M + Bldg $10,200. Starting price $111 per Buildable SQFT or $557 per SQFT of land.
Listed by Amex Broadway West Realty.

Read More

Modern & recent $350k renovation incl. new: windows, paint & carpets. Warehouse completely pressure washed, floor grinded & re-leveled w/ fresh concrete. Then passed COV safety inspections & issued new occupancy cert. 18 ft. ceiling. 7,257 SF of leaseable area. Recently vacant w/ mkt rents of $24 per SF Net = 3.9% cap rate. Adjacent bldgs same owner 1642 & 1670 Pandora also on MLS. Heavy Industrial redevelopment site. Site is 8,052 SQFT of land & 66 FT of frontage along Pandora St. First time to sales market since built in 1991. Present M2 zoning allows Floor Space Ratio to 5.0 times the site size (40,260 buildable SQFT) for allowed uses of manufacturing, wholesaling, transportation & storage. Site is directly across the 4 storey PS Public Storage (74k SF floor area) & directly behind the newer 7 storey SmartStop Storage (90k SF). 2021 Phases 1 & 2 Environmental Analysis done. Jul 2024 BC Property Tax Assessment: Land $4.323M + Bldg $10,200. Starting price $111 per Buildable SQFT or $557 per SQFT of land.

Listed by Amex Broadway West Realty.

Vancouver, Fraser Valley and Chilliwack MLS® Reciprocity Brought to you by your friendly REALTORS® through the MLS® System, courtesy of Oracle Property Group for your convenience.
Disclaimer: This representation is based in whole or in part on data generated by the Chilliwack & District Real Estate Board, Fraser Valley Real Estate Board or Real Estate Board of Greater Vancouver which assumes no responsibility for its accuracy.

Listing Details
  • MLS®: C8065896
  • Type: Industrial
  • Size: 7,257 sqft
  • Lot Size: 7,841 sqft
  • Zoning: M-2
  • Sub Type: Industrial
  • $/SQFT: $618.30
About Hastings, Vancouver East
Address on Google Mapsmap marker icon
Map View
Street View

Amenities nearby 1636 Pandora Street

Hastings, Vancouver East

Latitude: 49.2829967

Longitude: -123.0715384

V5L 1L6

Similar Listings


Contact us now to get started with your next move!